More Detail

An attractive and impressive detached family house in a superb location within the Legh Road Conservation Area, standing in landscaped gardens and grounds of nearly 3 acres, just a few hundred meters from the town and railway station.
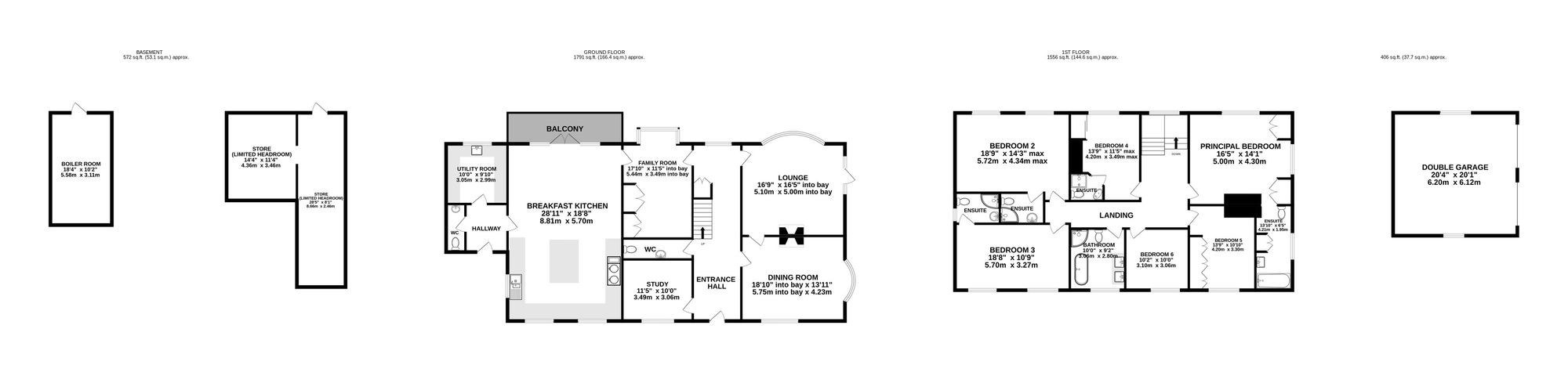
Constructed originally around the 1920’s, and extended and refurbished over recent years the house is presented in good order throughout. It is a lovely family home with rooms of super proportions and accommodation over two floors. There is potential to enlarge and excavate a lower floor area into additional accommodation (subject to planning permission).
Each of the main reception rooms are set out around a spacious oak floored entrance hall and include a front facing study, and a charming part-panelled sitting room with open stone fireplace, a lovely dual aspect over the gardens and a glazed door to a small balcony. There is a spacious dual aspect dining room, again with an open fireplace, and a large multi-use kitchen breakfast living room – another triple aspect room with full height glazing and glass doors to a walk-out balcony at the rear. The kitchen has a range of contemporary floor tiles, hand painted mixed colour cabinets with built-in appliances including an Aga and a huge wooden topped central island and breakfast bar. Next to the kitchen is a family room or morning room currently housing a piano, with a view over the gardens. A side lobby gives access to a utility room and secondary WC and a main guest WC sits off the hallway.
At first floor level there are in all six bedrooms and five bathrooms. The main bedroom enjoys a dual aspect overlooking the gardens with several built-in wardrobes and a good sized en suite bathroom, there are three further equally large double bedrooms with en suite shower rooms, and the remaining two double bedrooms share a good sized family bathroom with freestanding bath and corner shower cubicle.
Externally, entry gates give access to a substantial gravel driveway and there is a detached double garage. The surrounding gardens and grounds are simply wonderful with adjacent formal lawns falling away towards more wooded sections, adjoining Sanctuary Moor at the rear.
To the rear of the house, as the land falls away, are several useful storerooms that open on to the gravelled rear path – one housing the boiler. The topography of the land means that with further excavation a lower floor leading directly onto the garden is possible. It would of course require planning consent and would be a significant undertaking but does present an excellent further opportunity for development.

6 bed detached house for sale in Toft Road, Knutsford, WA16

Price :

£,2500,000

Property Overview

Key features

  • Large and impressive family house in the Legh Road conservation area
  • Six bedrooms, five bathrooms, four reception rooms
  • Gated landscaped gardens and grounds of nearly 3 acres
  • Only a few hundred metres to the town and railway station

Property Location

Further details

Floorplan

Floorplan

Contact Us Now

Get in Touch With Ventus Team

Working Hour